Lakelands, Craigavon

Under Offer £180,000

4 3 1

The location is exceptional just a short walk to Rushmere Shopping Centre and South Lake Leisure Centre, with excellent schools close by. Surrounded by lakeside paths and open green space, it`s ideal for all the family, including your four-legged friends.

Property Overview

Positioned on one of the most sought-after rows within the Lakelands development, this substantial four-bedroom townhouse enjoys a prime setting overlooking the water.

Homes in this row rarely come to the market, making this a unique opportunity to secure a property with some of the finest views in the area.

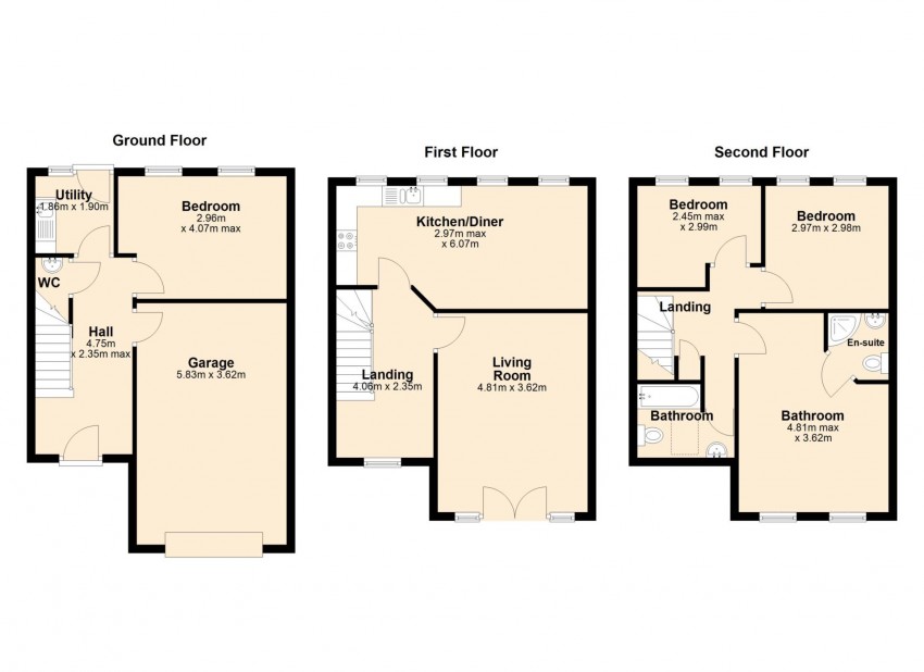
Accommodation

Ground Floor

1. Entrance hallway

2. WC

3. Large Fourth bedroom

4. Internal access to attached garage

First Floor

1. Bright, spacious lounge opening onto a balcony with stunning lake views

2. Family kitchen and dining area

Second Floor

1. Three bedrooms including master with en-suite shower room, 3rd bedroom suitable for home office if required.

2. Modern family bathroom



Key Features

1. Uninterrupted lake views from the balcony and lounge

2. Brand new high-powered pressurised heating system

3. Newly installed attic stairs with floored roof space for storage

4. Open-plan tarmac driveway with parking for two to three cars (only tarmacked 12 months previously)

5. Fully enclosed rear garden

6. Five-minute walk to South Lake Leisure Centre and watersports facilities

7. Seven-minute walk to Rushmere Shopping Centre

8. Dog-friendly lakeside walks and a choice of excellent schools nearby

Why We Love It

Step out onto the balcony and you`ll understand what makes this home so special. The views, the space, the calm it`s all here.

With flexible three-storey living, modern upgrades, and a truly unbeatable location, 124 Lakelands is more than just a home. It`s a lifestyle.

Arrange your viewing today:

Heretohelp@kinghamproperty.com







Notice

Please note we have not tested any apparatus, fixtures, fittings, or services. Interested parties must undertake their own investigation into the working order of these items. All measurements are approximate and photographs provided for guidance only.



Rates Payable

Armagh City, Banbridge And Craigavon Borough Council, For Period April 2025 To March 2026 £1,214.29



Utilities

Electric: Mains Supply

Gas: Unknown

Water: Mains Supply

Sewerage: Mains Supply

Broadband: Unknown

Telephone: Unknown



Other Items

Heating: Oil Central Heating

Garden/Outside Space: Yes

Parking: Yes

Garage: Yes

  • Tenure: Freehold
EPC Graph for Lakelands, Craigavon

Get a virtual valuation

Find out how much your property is worth