Lurgan Road, Aghagallon

For Sale Offers Over, £110,000

1 1

Discover Your Dream Home at 5 Lurgan Road, Aghagallon!



Embark on a journey to create your perfect abode with the unique opportunity to own the only independent building site on the main road in the charming village of Aghagallon. This prime location boasts a large south-facing garden, providing the perfect setting to design your dream home bathed in natural light and warmth. Priced affordably at £110,000, this gem offers you the canvas to craft a sanctuary that is truly one-of-a-kind!



Notable points

Full planning permission approved for the following:

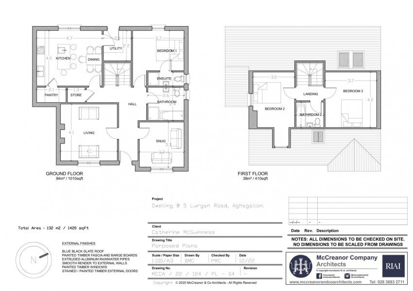
Detached 1420sqft Chalet bungalow

Additional existing garage` which offers the opportunity to add an additional living space (home office / gym / garage) .

You can have 3- or 4-bedroom option with separate lounge and kitchen diner.

With private access off the Lurgan Road

Planning application reference number LA08/2023/1999/F

Please note you can at your own leisure amend these drawings to suit your own requirements.



Crafting Your Dream Home:

Building your own house offers you unparalleled freedom and flexibility to bring your vision to life. With the advantage of being the sole independent site on the main road in Aghagallon, you have the rare opportunity to design a home that stands out in its uniqueness and charm. The large south-facing garden presents endless possibilities for creating outdoor spaces that invite relaxation and enjoyment, making your dream home a haven for rejuvenation and serenity.



An Oasis of Tranquility:

Surrounded by the lush greenery and scenic beauty of the countryside, 5 Lurgan Road offers a peaceful retreat from the hustle and bustle of city life. The large south-facing garden ensures that your home is filled with natural light throughout the day, creating a warm and inviting atmosphere. Imagine starting your mornings with the gentle rays of the sun streaming into your living space, filling it with positivity and energy.



Living in Harmony with Nature:

Aghagallon provides the ideal backdrop for those seeking a harmonious blend of modern living and natural beauty. The village`s close-knit community and serene ambiance offer a tranquil lifestyle that is hard to find elsewhere. With convenient access to amenities and the luxury of a spacious south-facing garden, living at 5 Lurgan Road promises a lifestyle of comfort, convenience, and connection with nature.



Proximity to Nearby Towns:

- Just a short drive from Lurgan, offering a range of shopping and dining options

- Close to Moira, known for its historic charm and leisure activities

- Easy access to Belfast, providing a vibrant city experience and cultural attractions



Why Choose 5 Lurgan Road:

- The only independent building site on the main road in Aghagallon

- Large south-facing garden for ample outdoor living space

- Unique opportunity to create a standout home that reflects your style

- Peaceful village setting with stunning countryside views

- Competitive price of £110,000 for this exceptional property



Don`t miss the chance to transform your dream home into a reality at 5 Lurgan Road. Contact us today to seize this exclusive opportunity and begin the journey towards crafting a home that is as extraordinary and special as you are. Welcome to a lifetime of comfort, beauty, and tranquility your dream home awaits in the heart of Aghagallon!







what3words /// name.unite.dwelled



Notice

Please note we have not tested any apparatus, fixtures, fittings, or services. Interested parties must undertake their own investigation into the working order of these items. All measurements are approximate and photographs provided for guidance only.



Utilities

Electric: Unknown

Gas: Unknown

Water: Unknown

Sewerage: Unknown

Broadband: Unknown

Telephone: Unknown



Other Items

Heating: Not Specified

Garden/Outside Space: No

Parking: Yes

Garage: Yes

  • Tenure: Freehold

Get a virtual valuation

Find out how much your property is worth